ラントゥレーベン大三島(今治市滞在型農園施設)
都市住民の自然志向の高まり、農業でのつくる喜びがブームになっています。
瀬戸内の自然の中で住んでみたい・・・・・。
そう思ったことはありませんか?
1年間(最長5年間)滞在型農園をお貸しします。
ラントゥレーベン大三島利用者の募集
※募集は終了しました。

ラウベ&菜園

ダイニング&キッチン
※写真はイメージです。
電化製品(冷蔵庫など)は
付いていません。
3棟の加温ハウス
近年、余暇の増大により、自然とのふれあい、癒しによる安らぎを求める志向が高まっており、緑豊かな農村地域への関心が寄せられています。
ラントゥレーベン大三島は、日ごろ農業に親しむことの少ない都市住民の方が、花や野菜を育てつくる喜びを実感しながら農村地域での交流を通して自然を満喫するための滞在型農園施設です。
ラントゥレーベンとは、グリーン・ツーリズムの先進地ドイツで「田舎暮らし・田園生活」を意味し、1区画約300平方メートルの敷地に、約100平方メートルの菜園での花づくり・野菜づくりを楽しめ、また、ラウベ(休憩施設)はバス・トイレ・キッチン(下水道完備)、倉庫を備えており、長期間の滞在も十分対応でき、家族やグループが楽しい時間を過ごすことができます。
また、菜園での作業は地域農家の方が指導を行い、利用者とふれあいをすることにより交流を図ります。
現在、関東・関西などの都市住民の方が土とふれ合い、花・野菜づくりの喜び、地域イベントの参加などを通して自然を満喫しながら地域住民と楽しく交流しています。
施設の概要

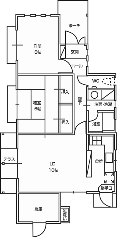
- Aタイプの間取図

- Bタイプの間取図

- Cタイプの間取図

1区画約300平方メートル前後の敷地に、ラウベ(休憩施設木造3タイプ16棟)と菜園100平方メートル。その他に交流農園・加温ハウス3棟・公園があります。
ラウベ(休憩施設)
Aタイプ(2LDK)10棟
Bタイプ(1DKロフト付)4棟
Cタイプ(1DK) 2棟
施設利用料金
| 種別 | 利用料金(年額) | 備考 |
|---|---|---|
| 滞在型 | Aタイプ 444,000円 Bタイプ 372,000円 Cタイプ 312,000円 |
1年契約 最長5年更新 |
| 光熱水費 | 実費 | |
| 下水道使用料 | 実費 |
現在の利用者数(令和7年11月1日現在)
北海道(1)、宮城県(1)、茨城県(1)、東京都(3)、埼玉県(1)、神奈川県(2)、三重県(1)、大阪府(1)、兵庫県(1)、香川県(1)、広島県(2)
利用条件
- 滞在は月に最低3泊6日間(1泊2日を3回)とし、必要な農作業を行う。
- 地域住民との交流を図るため、地域イベント等に積極的に参加すること。
- 利用者は、諸条件に従って設置者と契約する。
- 契約は1年契約とし、最長5年間更新可能。
- その他別に定める条件、規則を遵守すること。
禁止事項
- 滞在施設を他の者に貸したり、使用の権利を他の者に譲ったりすること。
- 利用許可を受けた以外の者を無断で居住させること。
- 滞在施設を無断で模様替えしたり、増改築すること。
- 動物を飼育すること。(飼い主にとっては気にならなくとも、動物の嫌いな人、動物のにおい、鳴き声などで近所に大変迷惑をかけます。)
- 施設内で野外広告物、ポスター等を掲示すること。
- テレビ・ラジオ・ステレオ等の声を大きくしたり、騒音を発すること。
- 屋根に無線アンテナ・太陽熱温水器等を設置すること。
- 当滞在施設に住民票を移すこと。
- その他、市長が必要と認めて禁止したこと。
施設利用の支援体制
地域農家、農業指導者による営農指導などの支援を行う。
交通アクセス

マイカーで
本州方面から
尾道I.C・福山西I.Cから瀬戸内しまなみ海道大三島I.Cまで約60分
大三島I.Cで下車し、約20分
四国方面から
今治から瀬戸内しまなみ海道大三島I.Cまで約40分
大三島I.Cで下車し、約20分
高速バスで
広島
広島バスセンター~大三島B.S.(約120分)
福山(広島県)
福山駅~大三島B.S.(約60分)
今治(愛媛県)
今治駅~宮浦港(約60分)
船(フェリー)で
忠海港(広島県竹原市)~盛港(約20分)、盛港より車で約20分
ラントゥレーベン管理組合ホームページ
http://wwwb.pikara.ne.jp/landweb/(外部サイト)
ラントゥレーベンの紹介やギャラリー、ブログなどを掲載しています。
お問い合わせ
今治市役所 大三島支所 住民サービス課
〒794-1392 愛媛県今治市大三島町宮浦5708番地
電話番号:0897-82-0500(代) ファックス番号:0897-82-0661
Eメール oomisima4@imabari-city.jp